当社では下記に掲載の中古物件もございます
ただいま取扱中の物件はありません。
近日アップデート予定です。
成約済み

|
パレ逆瀬川
マスターズプレイス
▲種別
マンション
▲最寄駅
逆瀬川
▲価格
▲所在地
宝塚市千種1−2−5
▲交通
阪急今津線線「逆瀬川」駅
徒歩8分
▲構造
RC造地上8階建6階部分
▲面積
84.36㎡
▲バルコニー
14.76㎡
|
▲築年数
平成14年1月
▲施主
ハイエリア株式会社
▲施行
株式会社熊谷組
▲管理費
▲積立金
▲駐車場
▲土地権利
所有権
▲備考
ペット不可
▲現況
▲引渡
▲管理形態
日勤
▲総戸数
86戸
成約済み |
|

|
ラビスタ宝塚
サウステラス1番館
▲種別
マンション
▲最寄駅
宝塚南口
▲所在地
宝塚市すみれが丘
1-6-1
▲交通
阪急今津線「宝塚南口」駅
バス10分
▲構造
鉄骨鉄筋造地上15階建9階部分
▲面積
75.68㎡
▲バルコニー
12.38㎡
|
▲築年数
平成2年2月
▲施主
宝塚開発(株)
▲施行
(株)長谷工コーポレーション
▲土地権利
所有権
▲現況
空
▲管理形態
全部委託/日勤
▲総戸数
153戸
成約済み |
|

|
▲種別
中古一戸建て
▲最寄駅
学園前
▲価格
▲所在地
奈良市百楽町1丁目
▲交通
近鉄奈良線「学園前」駅
徒歩3分
▲構造
木造瓦葺2階建て
▲面積
351.47㎡
|
▲延べ面積
229.69㎡
▲築年数
昭和43年(増築部分60年)
▲接道
角地
▲土地権利
所有権
▲現況
入居中
成約済み |
|

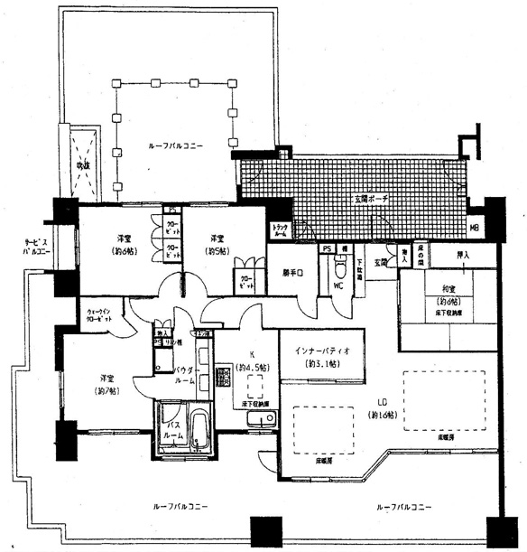
*最上階角部屋
*床暖、床下収納庫
*ルーフバルコニー |
パークスクエア城東1番館
15階
▲交通/
「鴫野」駅・徒歩8分
▲所在地/
城東区新喜多東2丁目
▲構造/
鉄筋コンクリート造地上15階建
▲専有面積/
115.55㎡
69.82㎡(バルコニー)
▲築/
平成14年2月
|
▲施主/
住友不動産㈱▲施工/
住友建設㈱▲土地権利
所有権
▲現況
入居中
成約済み |
|

*日当り良好!
*角部屋
*駅徒歩2分の好立地
*広いポーチ付き |
プロパレス高井田センシージョ
704号室
▲交通/
地下鉄中央線「高井田」駅徒歩2分
▲所在地/
東大阪市川俣1-4-8
▲交通/
地下鉄中央線「高井田」駅徒歩2分
▲構造/
鉄筋コンクリート造7階部分
▲専有面積/
68.83㎡
|
▲築/
平成14年7月
▲施工/
森組
成約済み |
|
|
売却をお考えのお客差さまも、ご遠慮なくご相談ください。
お気軽にお問い合わせください。