グリーンタウン伯太 モデルルーム 販売中
![]() |
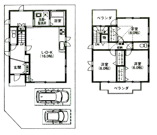
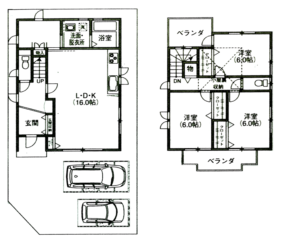
■所在地/和泉市伯太町3丁目12番 ■交通/JR阪和線信太山駅徒歩17分 ■地目/宅地 ■現状/更地 ■土地面積/105.80㎡ ■建延面積/92.34㎡ ■構造/●造2階建 ■道路/北東側・市道約5m(舗装) ■都市計画/市街化区域 ■用途地域/第1種中高層住居専用地域 ■建ぺい率/60% ■容積率/200% ■取引形態/売主 ■プラン構造/木造軸組カラーベスト葺き・2階建て ■価格/2,400万円税込 ■防火地域/無指定(準防火地域指定基準住宅施工) ■設備/関西電力・都市ガス・上下水道 |
9号地 3LDK + ガレージ2台
| それぞれの写真をクリックすると拡大します。 | ||
建物正面 |
![]() 建物側面 |
![]() 建物背面 |
![]() 外壁 |
![]() インターホン |
![]() 玄関扉 |
![]() 下駄箱 |
![]() 一階トイレ |
![]() 一階リビング |
![]() キッチン収納 |
![]() キッチン |
![]() キッチン |
![]() ランドリースペース |
![]() 浴室乾燥機 |
![]() バスルーム |
![]() 洗面所 |
![]() 洗面台 |
![]() バルコニー |
![]() 階段 |
![]() 2F通路 |
![]() 2Fトイレ |
![]() 2F洋室1 |
![]() 2F洋室2 |
![]() 2F洋室収納1 |
![]() 2F洋室収納2 |
大阪市内まで約一時間(JR阪和線 信太山駅徒歩17分)
![]() |
![]() |
| ※クリックで拡大します |
| 〈Google Mapで見る〉 |
緑豊かな自然に囲まれた静かな環境
![]() |




































